物件詳細情報
|
[1234]home-p 東京都足立区 |
物件情報の詳細
|
|||
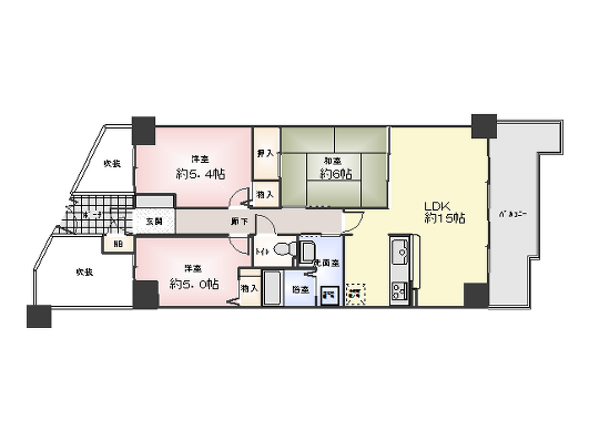
| 間取 | 2SLDK | 賃料 | 500万円 |
| 間取詳細 | 管理費/修繕積立金 | 12,000円/21,000円 | |
| 専有/バルコニー | 70.00u/− | 販売区画 | / |
| 所在階/建物階 | 5階/10階建 | 建物構造 | RC造 |
| 駐車場 | 1台 9,000円/台 | 建物:延べ面積 | −:− |
| 交通手段 | 山手線東京 | 築年月/完成予定 | 2000年1月(築25年) |
| 権利形態 | 所有権 | 国土法 | |
| 引渡し日 | 即日 | 取引形態 | 仲介 |
| 設備等 |
|
||
| その他 | |||
| 情報登録日 | 2014年02月09日 | 次回更新予定 | 随時 |
| 空状況 |
|
||
地図
|
|||
 
全0件
もっと詳しく知りたい(0)
少し興味がある(0)
興味が無い(0)
|
|
|

トップ
物件検索
新着物件
お勧め物件
個人情報
会社概要
お問合せ
会員LOGIN
メニュー
HOME
お問い合わせ
お問い合わせリスト
物件検索
新規会員登録
パスワードが不明な方
全物件一覧
お勧め物件(33件)
土地(26)
戸建(28)
マンション(14)
アパート(3)
事務所(2)
駐車場(7)
店舗(8)
倉庫・その他(3)
売買−エリア検索
賃貸−エリア検索
売買−路線検索
賃貸−路線検索
返済シミュレーション
物件のイメージ


物件情報の詳細
リフォーム
インターホン
ユニットバス
サーモスタットシャワー
追焚
床下収納
地図
印刷
お問い合わせ
返済シミュレーション
マイリストに追加
BACK
全0件
もっと詳しく知りたい(0)
少し興味がある(0)
興味が無い(0)
